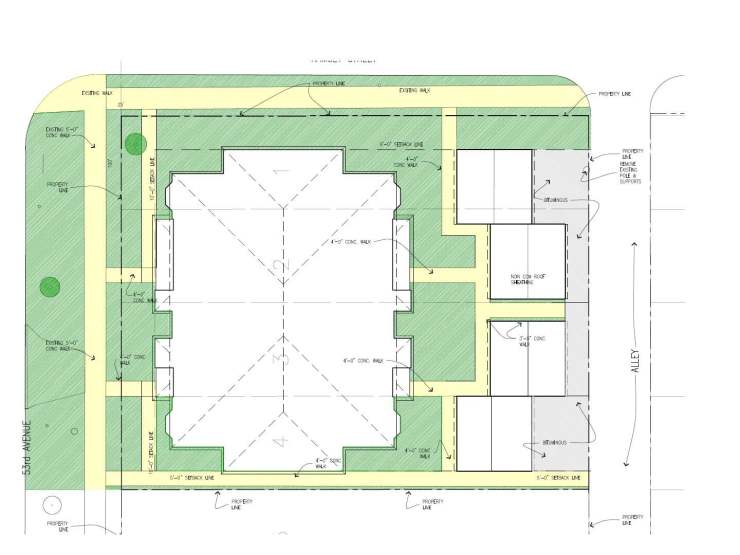
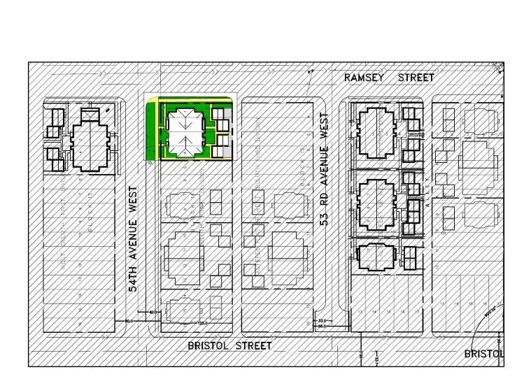
Ramsey III Ramsey III Site, an old gas station site, recently a Loomis Armored Car Garage Ramsey III in Color, Ramsey II Bold, Ramsey I Ramsey III Site Plan Main Level. One and Two Bedroom Units Upper Level Ramsey III One and Two Bedrooms Street View Ramsey III Share this: Share on X (Opens in new window) X Share on Facebook (Opens in new window) Facebook Like Loading...