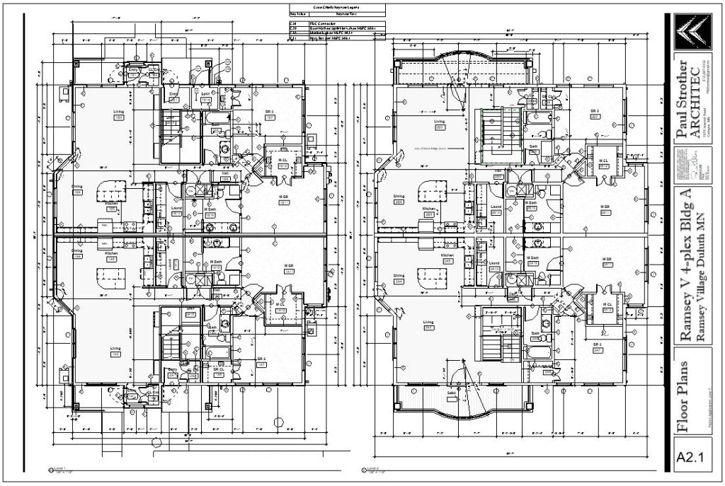
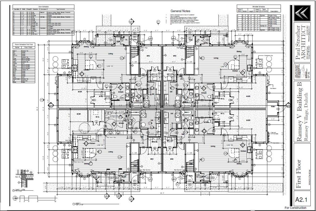
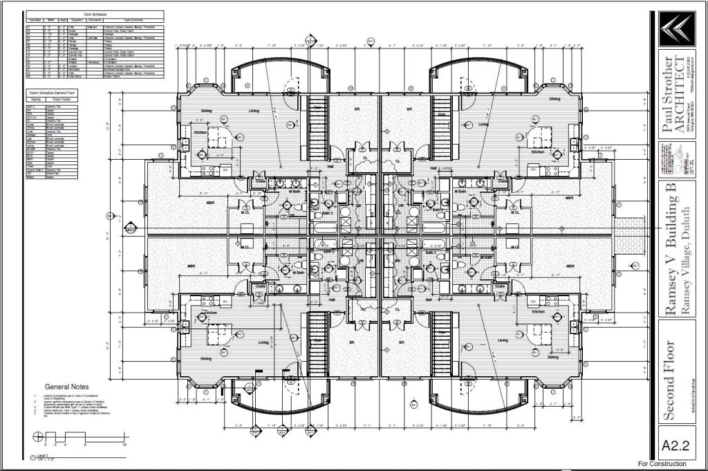
Ramsey V was revised to replace two Fourplex Units on 53rd with an Eightplex and a Duplex to improve unit diversity in the neighborhood



- Corner 53rd and Ramsey Today







Ramsey V was revised to replace two Fourplex Units on 53rd with an Eightplex and a Duplex to improve unit diversity in the neighborhood









